
山東,濟南
SHANDONG ,JINAN
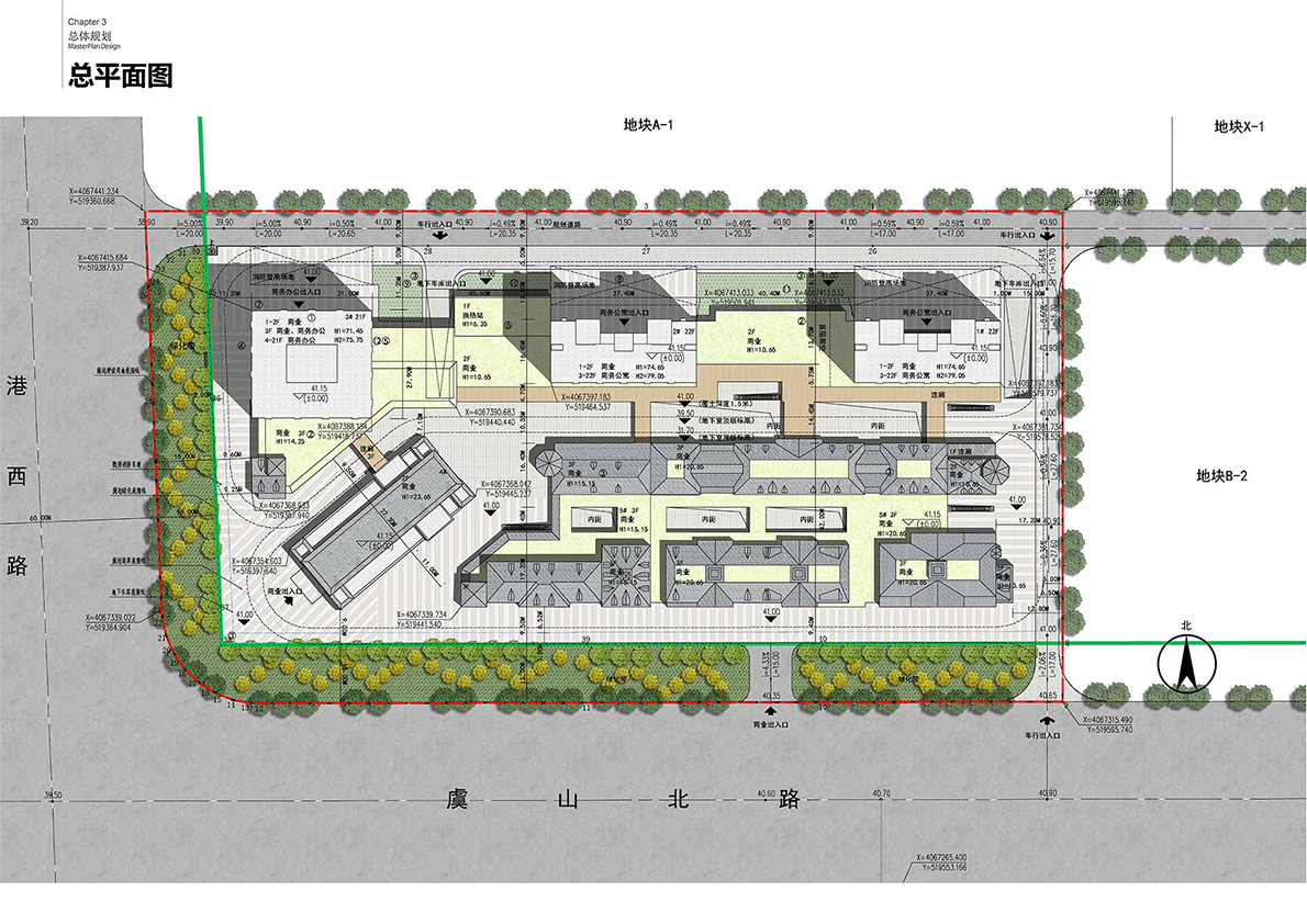
本項目規劃用地性質為商業商務,項目基地位于濟南歷城區郭店街道李東李西村,由意大利風情街和英國風情街組成。
作為高端商業辦公項目,承擔著辦公、居住和商業需求,根據發展規劃,項目將實現三大目標:
一.建設國際一流的高品質辦公、居住、商業的需要;
二.塑造城市新地標,營造城市活力中心;
三.打造其成為濟南高品質的辦公居住商業中心以及文化旅游地標。
本項目的設計不僅關注構建建筑,更注重于營造空間,打造體驗。設計師通過營造引人矚目、優雅浪漫的步行街道空間來豐富人們的商業體驗。同時,設計師賦予了建筑歷史厚重感,恰如其分地將歐式風格與商業氛圍融合在一起。商業部分以優雅、浪漫為主要基調,采用了段落式重復狀的開窗形式以及局部色彩小面積變化的表現方式;裝飾采用的是顏色莊重大氣的石材或仿古石材裝飾面;細節處理部分運用柱廊、雕花、線條、鐵藝等形式,呈現出浪漫典雅的風格,追求建筑的詩意;屋頂部分則采用坡度且有轉折的屋頂形式,意在打造一個具有歐式風情街區的建筑形象。





